台州仙居经开区项目
均价3700元/㎡
李安琪
资深招商经理
产业招商专家,熟悉本园区特色
园区介绍
基本信息
开发商:锦隆(台州)智能装备有限公司产品类型:标准厂房建筑形式:独栋(2.5层、3.5层)招商产业:新能源动力及上下游相关配套招商中心地址:仙居县溪下村镇西路中南高科仙居项目招商中心
规格属性
建筑结构:框架抗震等级:二级耐火等级:二级消防等级:丁类交地标准:毛坯
物业情况
水价:-天然气:-物业费:-工业用电:-污水处理:-
基本设施
户型介绍
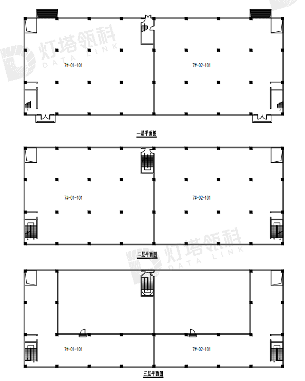
- 2层半独栋

- 三层半独栋
预览
园区简介
项目总占地面积约92亩,总建筑面积约9万㎡。项目以高标准制造厂房为主要载体,共规划厂房44套,以二层半、三层半厂房为主,重点引入以新能源动力及上下游相关配套制造的知名企业。
位置周边
灯塔看点

仙居 | 上半年工程奋进 引领产业经济新飞跃

仙居新能源关键装备产业园:乘势而上,开启产业新未来

媒体聚焦 | 《昆明日报》报道中南高科·昆明智汇产业园

获《扬州日报》专题报道!这家集成电路检测企业以创新智能护航“中国芯”

政企携手开新局,合力绘就智造升级新图景
暂无消息~


