中南高科经发投·江夏生命科学城


均价3968元/㎡
申道鑫
资深招商经理

产业招商专家,熟悉本园区特色


园区介绍
基本信息

开发商:武汉锦凡经发生物工程有限公司产品类型:标准厂房建筑形式:独栋(3层)分层(4层)招商产业:生物产业招商中心地址:/
规格属性

建筑结构:框架抗震等级:6度耐火等级:二级消防等级:丁类交地标准:毛坯
物业情况

水价:一户一表,水电费由业主自行缴纳。水电费以本地水务局、电力主管部门定价为准。天然气:/物业费:独栋及分层首层1.9元/㎡/月;分层楼上2.1元/㎡/月(含电梯运行及维护费)工业用电:0.56-0.75污水处理:水费含
基本设施






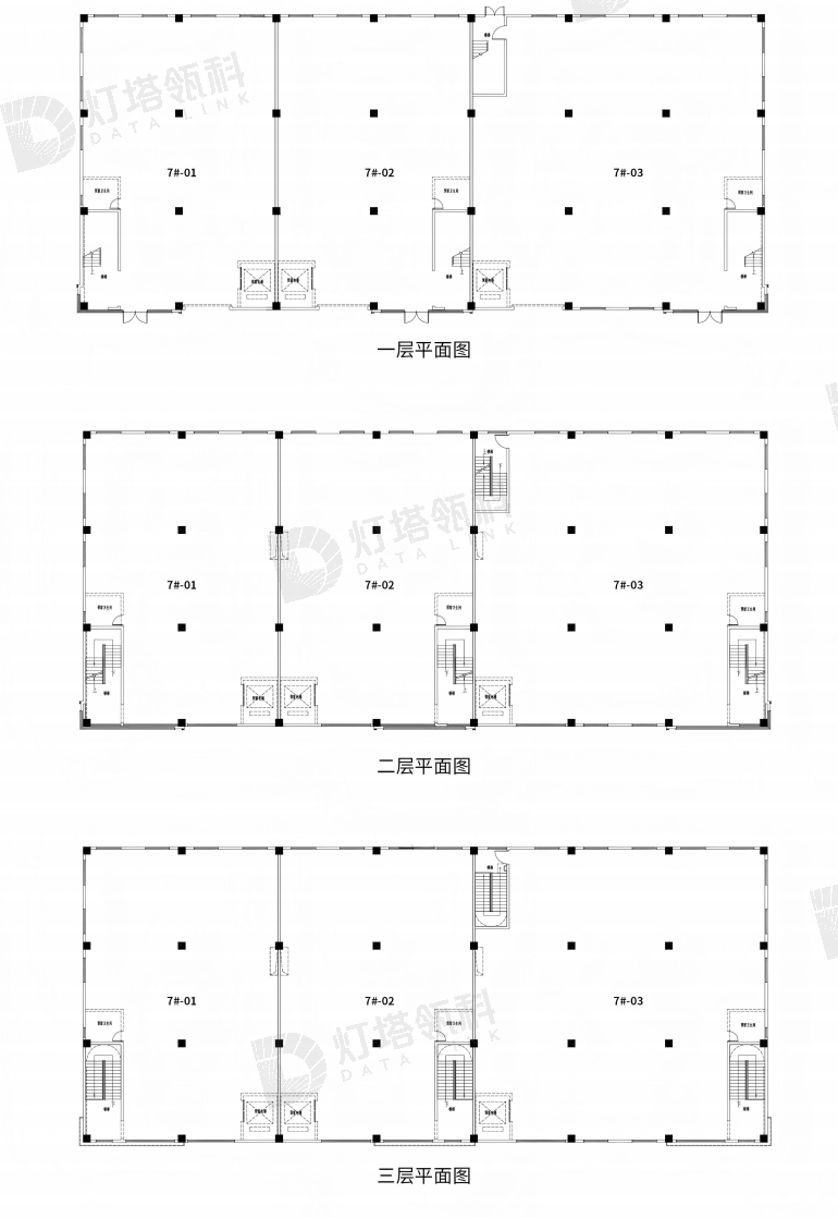
户型介绍
- 整栋三拼A户型
- 整栋三拼B户型
- 整栋三拼C户型

预览
园区简介
光谷南大健康产业园花园式厂房 火热销售中
中南高科·江夏生命科学城位于光谷南大健康产业园核心启动区,是中南高科携手江夏经发投集团共同打造的大健康产业研发制造基地。总体规划101亩,建筑面积11万方,总投资约5亿元。建成并投入运营后,预计引入企业100家,解决就业超3000人,年产值10亿元。肩负着武汉市大健康产业“一城一园三区”联动发展的重要使命,是武汉市万亿大健康产业发展的重要承载地。项目建成后将为光谷南大健康产业园延链补链强链,为入驻企业提供落户载体和服务平台。
位置周边
灯塔看点

重大签约!中南高科与武汉黄陂区签署投资协议

更懂制造业的园区 | 中南高科·江夏生命科学城


05:09
从“贴牌车间”到“自主研发”——凌度电子的进化之路

万物丰澄|两家灯塔企业荣登2025江苏省瞪羚企业榜

提前交付丨成都温江智造云谷 启幕产业新篇 再铸标杆园区!

暂无消息~